
Nákup objektu Skřivánčí 55/3027 pro účely rekonstrukce a přípravy 6 nových bytových jednotek k prodeji
Na objekt bude v období 2026-2027 prováděna totální rekonstrukce (výměna střechy, izolace, nové okna-dveře, kompletní rozvody - elektrika/slaboproud/datové struktury CAT6a /voda/odpady/rekuperace/plyn). Postupně bude dokončen nový vnější plášť, včetně izolace podle nejnovějších technologických postupů a norem.
Jednotlivé bytové jednotky budou od roku 2027 nabízeny k prodeji.
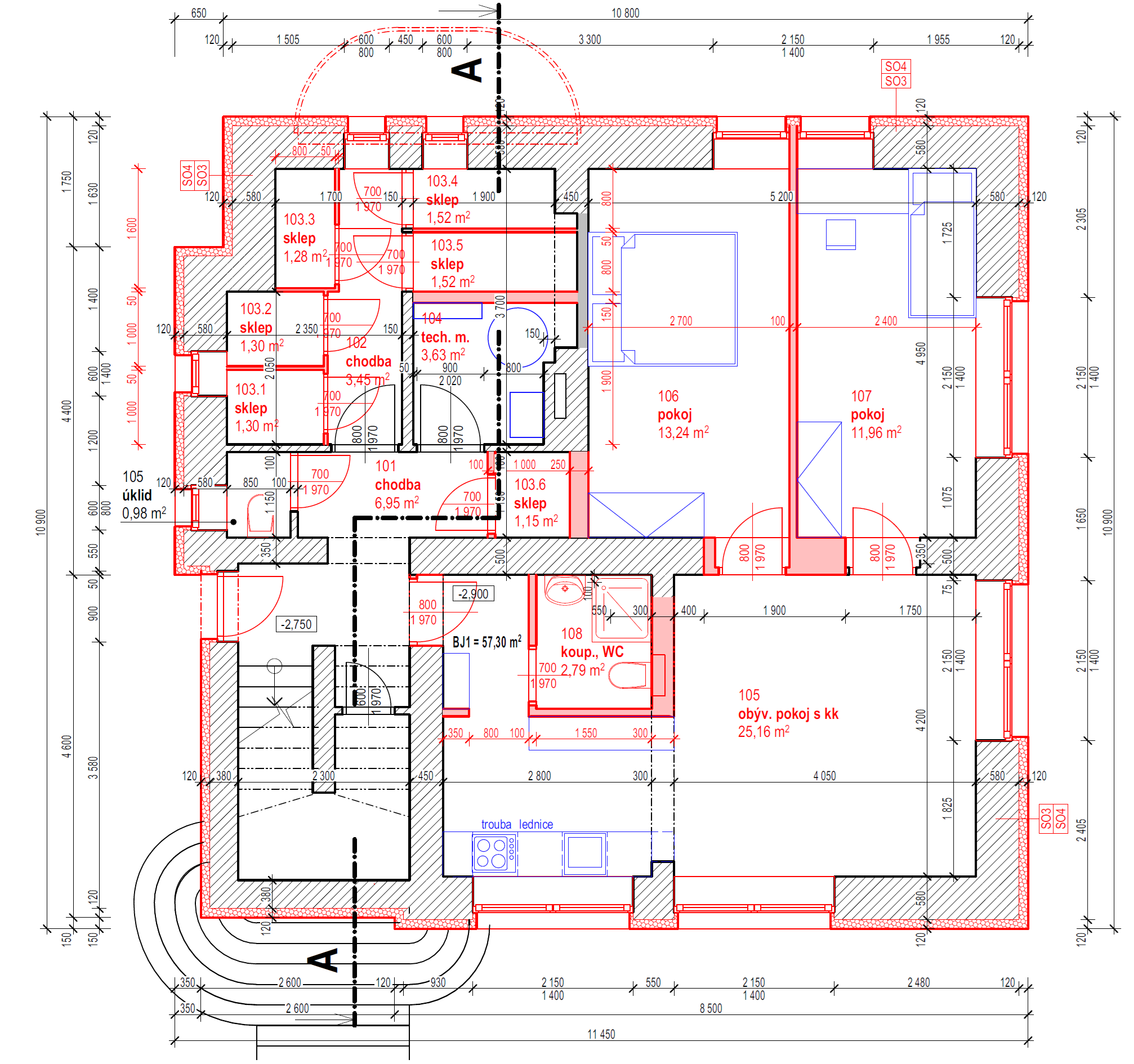
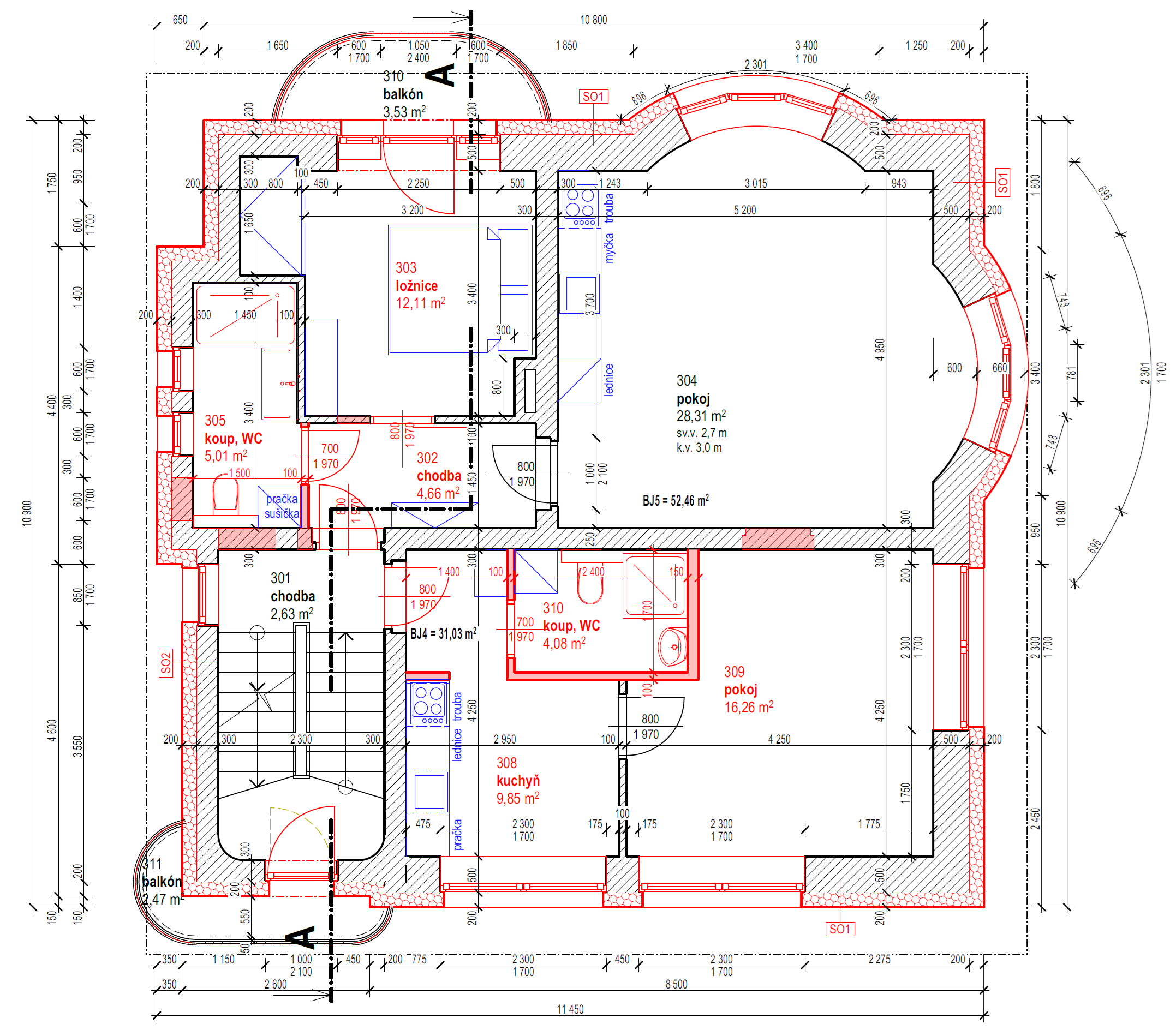
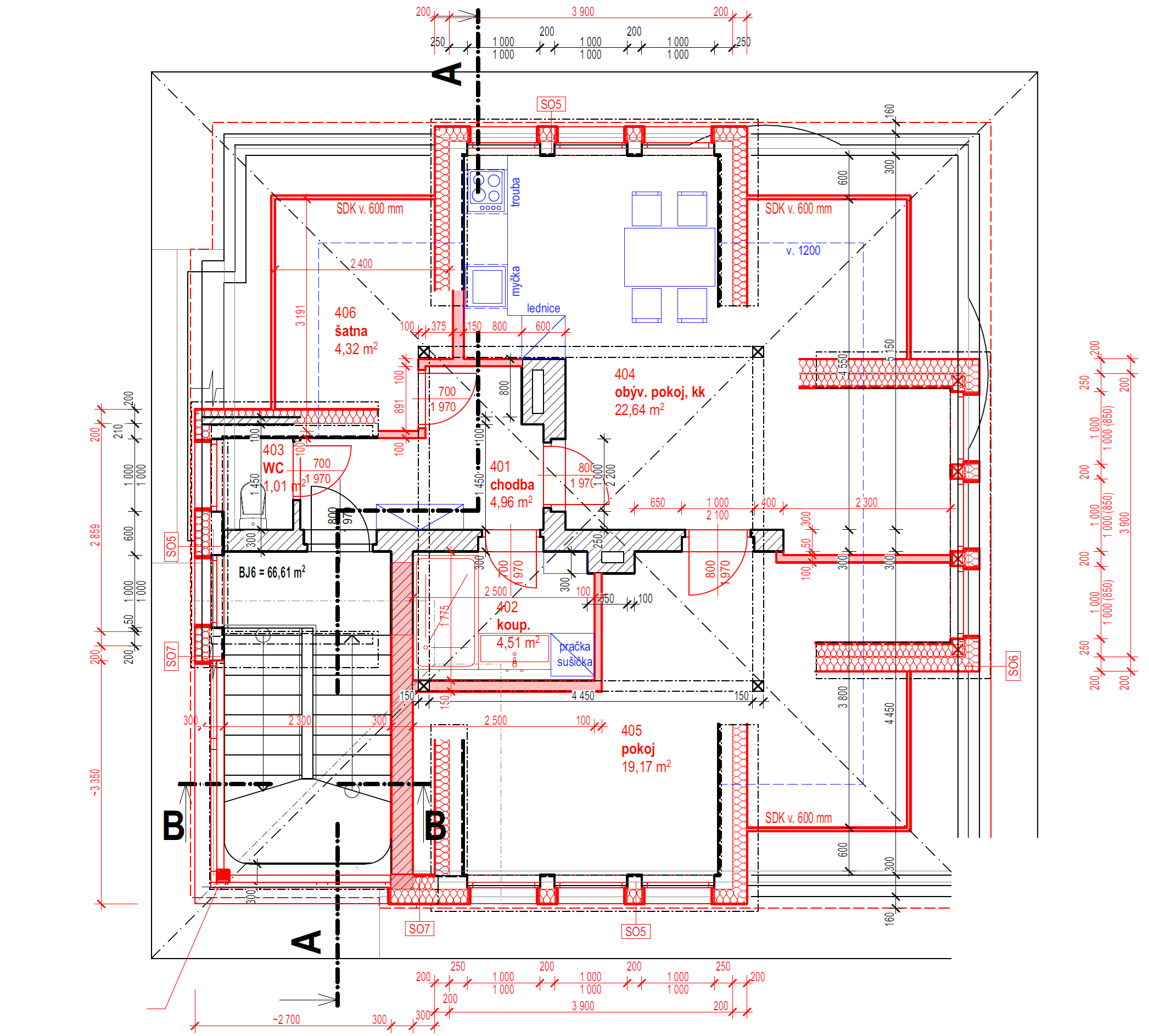
Velikosti jednotek
1NP 57m2 + 5m2 sklep
2NP 50m2 + 5m2 sklep
2NP 32m2 + 4m2 sklep
3NP 53m2 + 5m2 sklep
3NP 31m2 + 4m2 sklep
4NP luxusní 67m2 + 5m2 sklep
součástí bytové jednotky bude podíl na zahradě (celkový rozměr 482m2) + možnost dokoupení soukromého parkovacího stání vedle objektu
Případné dotazy k prodeji na : kubicek@realitypoint.cz




